²ÈÄÂ
60,000±ß
| ½êºßÃÏ | ±ÛÁ°»ÔÂçÂìÄ®25-23-6 |
|---|---|
| Éô²°ÈÖ¹æ | 105¹æ¼¼ |
| ¸òÄ̤ÎÊØ | ¤Î¤í¤Ã¤µ¡ÖÂçÂì¡×¥Ð¥¹Ää100£í |
| ·úÃÛǯ·îÆü | ÎáÏÂ6ǯ6·î´°À® |
| ÄÂÂ߸Ϳô | 6¸Í |
| ¹½Â¤µÚ¤Ó³¬¿ô | ÌÚ¤ʿ²°·ú¤Æ |
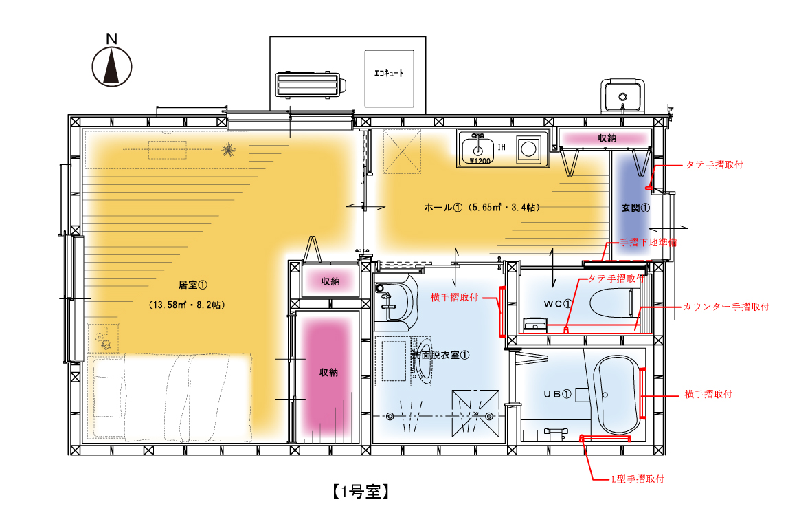
| Éô²°ÌÌÀÑ | 31.57Ö |
| ÀßÈ÷ | ¥¨¥¢¥³¥ó |
| ²ÈÄ | 60,000±ß |
| Éß¶â | 60,000±ß |
| Îé¶â | 0±ß |
| ´ÉÍýËô¤Ï¶¦±×Èñ | 8,000±ß |
| Ãç²ðÎÁ | 0±ß |
| ²ÐºÒÊݸ± | 20,000±ß¡Ê2ǯ´Ö¡Ë |
| Ãó¼Ö¾ì | 1Âæ¡ÊÍøÍѤξì¹ç¤Ï3,000±ß¡Ë |
| ¼è°ú·ÁÂÖ | Âß¼ç |
| ³Ø¹»¶è |
¾®³Ø¹»¡§ Ãæ³Ø¹»¡§ |
| ¾ðÊóÅÐÏ¿Æü Ëô¤Ï¹¹¿·Æü |
ÎáÏÂ6ǯ12·î2Æü¹¹¿· |
| È÷¹Í | ¢¨ÄÂÎÁ°Ê³°¤ËÀ¸³è»Ù±ç40,000±ßɬÍ× ¢¨µï¼¼Æâ¤Ë¤Ï¶ÛµÞÄÌÊó¥Ü¥¿¥ó3¥ö½ê¤¢¤ê¡Ê¿²¼¼¡¢¥È¥¤¥ì¡¢Íá¼¼¡Ë |






