販売価格
31,000,000円(税込)
| 販売状況 | |
|---|---|
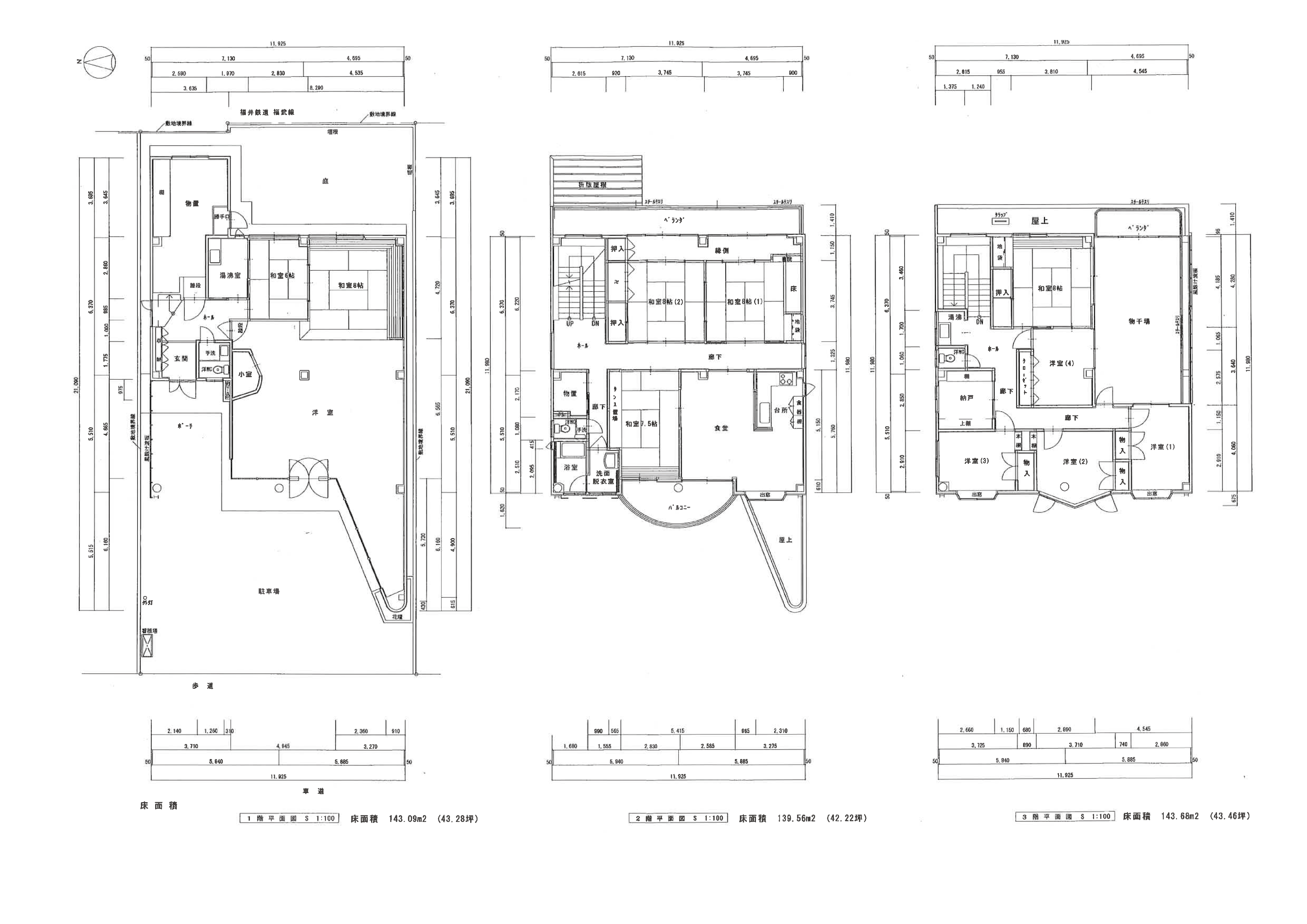
| 所在地 | 越前市家久町89-3-8 |
| 間取り | 1階:店舗 2階:居宅 3階:居宅 |
| 交通の便 | 福武線家久駅 300m |
| 用途地域 | 準工業地域 |
| 土地面積 | 330.60平米 (100.00坪) |
| 延床面積 | 389.40平米 (117.79坪) |
| 構造 | 鉄骨造亜鉛メッキ鋼板ぶき陸屋根3階建て |
| 学校区 |
小学校:吉野小学校 中学校:武生第一中学校 |
| 取引形態 | 仲介(専属専任媒介) |
| 販売戸数 | |
| 新築年月日 | 平成3年新築 |
| 情報登録日 又は更新日 |
令和6年12月2日更新 |
| 備考 | |
| 建築確認 許可番号 |


